Trilocale 100 m2
Milano

659.000 €

100

3

1

Nessuno

Trilocale
Contratto: Vendita
Piano: 5
Anno di costruzione: 1950
Classe Energetica: In attesa di certificazione
Riferimento: trilowashington
Spese condominiali: € 270,00 mensili

Descrizione

_AD.ZE PIAZZA PIEMONTE E M1 WAGNER_

_VIA WASHINGTON N. 11_

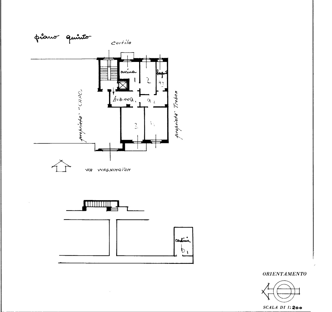
A pochi passi da Piazza Piemonte e dalla fermata della metropolitana linea rossa Wagner, in elegante contesto signorile anni ’50 con servizio di portineria full time e ascensore, proponiamo in vendita ampio appartamento di circa 100 mq situato al quinto piano di otto.
L’immobile, caratterizzato da una doppia esposizione parallela est-ovest, risulta particolarmente arioso e luminoso durante tutto l’arco della giornata.
L’ingresso si apre su un ampio disimpegno che conduce al soggiorno con balcone e affaccio su via Washington, mentre la cucina abitabile, anch’essa dotata di balcone, affaccia internamente garantendo tranquillità e riservatezza. La zona notte, ben separata, è composta da un ulteriore disimpegno, una spaziosa camera matrimoniale con possibilità di realizzare una cabina armadio, una seconda camera da letto e un bagno di generose dimensioni, facilmente divisibile per ricavare un secondo servizio e una comoda lavanderia, oltre a un pratico ripostiglio.
L’appartamento conserva finiture originali come la pavimentazione in marmo nella zona giorno, parquet nelle camere e ceramica in bagno, e si presta perfettamente a una ristrutturazione personalizzata secondo i propri gusti ed esigenze.
Completa la proprietà una grande cantina al piano -1.
La soluzione è ideale per famiglie o giovani coppie.
Un’opportunità da non perdere in una delle zone più richieste di Milano.

LIBERO SUBITO! DA NON PERDERE!!

N.B. La casa sarà svuotata nei prossimi giorni con integrazione di nuove foto.

PDF

Scarica Planimetria

Mappa

milano via washington 11