Bilocale 74 m2
Milano

269.000 €

74

2

1

Nessuno

Bilocale
Contratto: Vendita
Piano: 5
Anno di costruzione: 1960
Classe Energetica: G
EPi: 175
Riferimento: 2locare
Spese condominiali: € 170,00 mensili

Descrizione

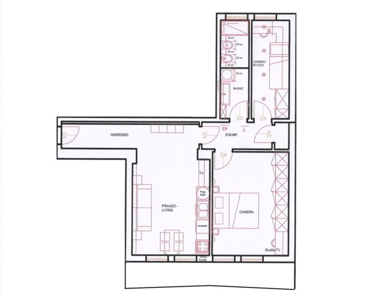
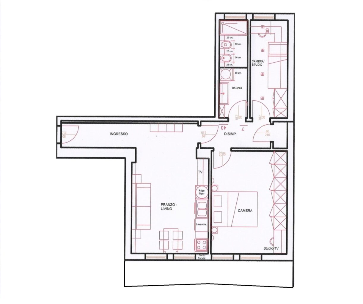
V.le Aretusa angolo Via Rembrandt. A pochi passi da tutti i servizi di primaria necessità, all’interno di uno stabile civile anni ’60 con servizio di portineria full-time, proponiamo luminoso due locali di 74mq posto ad un quinto piano in buone condizioni interne ed è così composto: ingresso, disimpegno, soggiorno con balcone, camera matrimoniale con balcone, bagno finestrato con doccia, cucina abitabile e ripostiglio.
Finiture: infissi esterni alluminio doppio vetro, tapparelle elettriche, pavimenti e rivestimenti in ceramica, videocitofono.
N.B: L’APPARTAMENTO SI PRESTA AD ESSERE TRASFORMATO IN UN TRE LOCALI VEDI PLANIMETRIA NELLA SEZIONE PLANIMETRIE.
Completa la proprietà un solaio di pertinenza. Da vedere!

PDF

Scarica Planimetria

Mappa

Viale Aretusa, 21, Milano, MI, Italia